CGNscan Köln

3D-Aufmaß neu gedacht.

Modernste Lasertechnologie für exakte Bestandsdaten – digital, schnell und millimetergenau.
Kostenloses Angebot anfordern >>

Gebäudevermessung – einfach & präzise

Die Digitalisierung im Bauwesen ist auf dem Vormarsch. Mit einem 3D-Gebäudescan sind Sie einen Schritt voraus. Unsere Scans lassen sich nahtlos in alle gängige CAD- und BIM-Systeme integrieren. So wird aus einem realen Objekt ein digitaler Zwilling, der Planung, Bauanträge und Ausführung erleichtert. Bauzeiten verkürzen sich, Kosten werden kalkulierbarer, und die Fehlerquote sinkt deutlich.
Mit modernster 3D-Lidar-Technologie erfassen wir Gebäude präzise, effizient und vollständig. Innen wie außen. Das Ergebnis sind millimetergenaue Punktwolken, 3D-Modelle und Grundlagendaten für Ihre CAD- oder BIM-Projekte.

Effiziente Bestandsaufnahme von Alt- und Neubauten

Die digitale Erfassung von Bestandsgebäuden mit 3D-Laserscanning ermöglicht eine lückenlose Dokumentation des Ist-Zustands. Gerade bei älteren Objekten oder denkmalgeschützten Gebäuden sind konventionelle Messmethoden oft zeitintensiv und ungenau. Durch Lidarscans erhalten Sie verformungsgerechte Grundrisse, Schnitte und 3D-Modelle, die eine sichere Grundlage für Umbau- oder Restaurierungsmaßnahmen darstellen. Ideal für Architekten und Planer, die zuverlässig mit bestehenden Strukturen arbeiten müssen.

Schneller Projektstart durch klaren Ablauf

Unser Service beginnt mit einer einfachen Angebotsanfrage und endet mit der Übergabe exakt aufbereiteter Daten. Dazwischen kümmern wir uns um alles. Von der Vor-Ort-Erfassung über die Datenverarbeitung bis zur Formatkonvertierung für Ihre CAD-, BIM- oder GIS-Systeme. Dabei setzen wir auf transparente Kommunikation und kurze Reaktionszeiten.
Sie möchten mehr erfahren? Rufen Sie uns an 0221 98 55 8000 oder senden Sie eine E-Mail. Profitieren Sie von in vielen Projekten erarbeiteten Erfahrung. Wir beraten Sie gerne zu den von Ihnen geplanten Projekten. Von der Planung bis zur Übergabe der fertigen Daten – alles aus einer Hand

Was wir bieten:

Leica Register360 Intensity Punktwolke einer Strasse

3D Aufmaß als Punktwolke

Sie benötigen eine Punktwolke und möchten die weitere Verarbeitung selbst übernehmen. Wir erstellen ein präzises 3D Aufmaß und liefern eine nach Ihren Vorstellungen aufbereitet Punktwolke in allen gängigen Formaten wie z.B.: .e57 oder .ptx.
CAD Darstellung eines Gebäudes

Erstellung von 3D-Modellen für CAD

Wir erstellen für Sie genau für Ihre CAD Anwendung abgestimmte 3D Modelle. Von der vereinfachten Darstellung in LOD200 bis hin hochaufgelösten Modellen können wir nahezu jede gewünschte Genauigkeit und Oberflächenqualität erstellen.
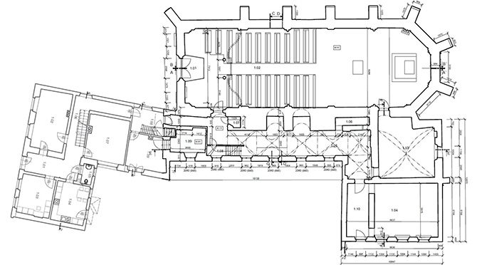
CAD Grundriss eines Gebäudes

2D Zeichnungen / Pläne

Lidarscans ermöglichen das schnelle und genaue Erfassen von Gebäuden und das kostengünstige Erstellung von 2D Zeichnungen aus den daraus abgeleiteten Grundrisse, Schnitte, Ansichten. Wir liefern 3D Daten für alle gängigen CAD Programme.

Höchste Präzision durch modernste Lasertechnologie

Für unsere 3D-Aufmaße setzen wir auf die leistungsstarken Laserscanner Leica RTC360 und Leica ScanStation P50. Diese Geräte ermöglichen millimetergenaue Erfassungen – sowohl im Innen- als auch im Außenbereich, bei großen Entfernungen und komplexen Strukturen. Das Ergebnis: Hochdetaillierte Punktwolken und präzise Messdaten als zuverlässige Grundlage für Ihre Planung in CAD und BIM.

Leica RTC360 und Leica P50 Lidarscanner

Longrange Lidarscanner

Durch unsere langjährige Erfahrung am Set kennen wir die Anforderungen an Qualität und Zeit. Wir erfassen schnell und professional hochwertige 360° Roundshots, HDRI, Texturen und Referenz Bilder.

Maßgeschneiderte Lösungen für Ihre Planung

Jedes Projekt ist anders. Deshalb bieten wir flexible 3D-Aufmaß-Services, die genau auf Ihre Anforderungen abgestimmt sind. Nehmen Sie Kontakt auf und lassen Sie uns gemeinsam die optimale Lösung finden.

Leica RTC360 Lidarscanner

    Angebotsanfrage

    Verlässlichkeit, die überzeugt

    Vom kleinen Bauprojekt bis zur Großplanung: Unsere Auftraggeber schätzen unsere präzisen Ergebnisse und zuverlässige Abwicklung. Hier sehen Sie eine Auswahl unserer zufriedenen Kunden.